Epizephyrian Locris
.jpg)
38°12′39″N 16°14′25″E / 38.21083°N 16.24028°E
Epizephyrian Locris, also known as Locri Epizephyrii or simply Locri (Ancient Greek: Λοκροί Ἐπιζεφύριοι, romanized: Lokroí Epizephúrioi, lit. 'Western Locrians'), was an ancient city in Italy located in Calabria on the Ionian Sea. It was founded at the beginning of the 7th century BCE as a Greek colony by colonists from Locris in central Greece. The ancient city gave its name to the modern town of Locri, Italy.[1][2][3]
It was an important city in the region of ancient Italy, known as Magna Graecia[4], during the Classical and Hellenistic periods. The city was recognized in the Greek world for its developments in music and dance, producing athletes who competed successfully in the Panhellenic Games.[5][6] It has also gained recognition for the roles of women and marriage.[7]
Locri is mentioned in the writings of Strabo,[8] Pausanias,[9] Eusebius of Caesarea, Plutarch,[10] Polybius and Diodorus Siculus[11] as well as in documents discovered in 2018 at Olympia.[12][13][14][15]
Site
The archaeological site of Locri Epizephyrii is located in Mandorleto, a frazione of the modern town of Locri, approximately 3 km southwest of the town center.[16] It is located between the Portigliola and Gerace rivers, and between the Ionian Sea and the hills of Castellace, Abbadessa, and Manella.[17][18][19] The ancient city’s foundations have been preserved relatively well. However, stones have been removed over the centuries to serve as building materials for the nearby structures in the surrounding region.
History
Foundation



Locri was the last of the Greek colonies founded in Calabria, following a wave of colonization by Achaeans from the Ionian coast (Metapontion, Poseidonia, Sybaris, Kroton),[20][21] shortly before 720 BC.[22][23][24][25][26].
Scholars generally favor the view that the colonists originated from Opuntian Locris, although the overall or partial origin of the settlers is also argued to be from Ozolian Locris. The dispute is based on different ancient sources. It is generally agreed however that the settlers were likely Helots.[27]
The first settlement was founded near Cape Zefirio (the current Cape Bruzzano). Later the colonists moved north by about 20 km close to the Epopis hill where they founded the historical city named "Epizephyrioi". The indigenous populations of Sicels were driven out.[28]
Government and organisation
Locri was organized according to a model similar to that of Locris; a rigid conservative and militarist aristocracy exercised power through the "Assembly of a Thousand" which likely included all citizens who enjoyed full political rights; the population was divided into three tribes and thirty-six phratries.[29]
The Epizephyrian Locris legal system was based on the legislation of Zaleucus, the first western legislator, c. 660 BC. It was a unique legislation for the time and place as Epizephyrian Locris were the first Greek community to use a written, codified set of laws rather than be dependent on the arbitrary decisions of judges, which became a source of social discord.[30] The system used the law of retaliation (Latin: lex talionis), imposing specific penalties for each crime committed in attempt of preventing serial family feuds and private vengeance customary at the time. The system also placed a much higher value on the role and social prestige of women within Epizephyrian Locrian society, derived from their role in the city's cults and their right to perpetuate inheritance and therefore the name of a family over time, even in the absence of male heirs. The nobility also traced its lineage matriarcally, avoiding the question of paternal uncertainty inherent in any patrilineal system.[31] This allowed the city to prosper peacefully for a long period with minimal internal conflict, enabling the ruling class to concentrate on the growth of the city in addition to the conquest and control of new territories.
In 7th century BC, the development of the city was well underway, expanding from the hills onto the plain closer to the sea, based on an organised urban plan. Its sanctuaries and cults became well-known across the Greek world; particularly two sanctuaries dedicated to Persephone (who was worshipped here as the protector of fertile marriage; a role typically associated with Hera, but the cultural conflation of two major transitions--marriage and death, both considered as a kind of transcendence to a more blissful state makes Persephone, flower maiden and underworld wife, a more logical choice for the part) and of Aphrodite.[32] At this time the extensive city walls of Locri consisting of a 5-mile circumference enclosing a large area up to the summit of the fortified hills, were planned, even though they were not completed until the second half of the 6th century BC.
Life in the city
Locri is considered to represent a "third way" in Greek culture, distinct from both Athens and Sparta, particularly in the distinctive role of women and marriage.[33] Marriage in Locri was seen as a transformative life event akin to the eternal bliss hoped for after death.
Banquets were widespread and primarily frequented by men. Women participated only as courtesans or slaves. Along with Sparta, Locri was one of the few Greek cities where women engaged in athletic competitions.
The grave goods of some children included terracotta dolls with articulated limbs, bronze and terracotta balls, as well as miniature objects, such as small lamps.
Black-glazed pottery (including drinking cups, plates, and bowls) was used in the kitchen. Only the richest could afford glass or metal vases. Amphorae were used for the storage and transport of wine, oil, olives, and sauces.
The population's livelihood relied on cereals and legumes, the hunting of hares, deer, and wild boars. Fishing with lines and nets was also practiced as evidenced by fish hooks displayed in the museum. Dairy products were provided by goats, sheep, and pigs. Fruit includes apples, pomegranates, figs, almonds, grapes, and honey.
Locri was also the birthplace of skilled athletes and Olympic Games winners, such as Euthymus and Hagesidamus.
Expansion
The city's stability led to an expansion of control over the territory through the establishment of sub-colonies, being driven by both a desire for greater control of the area, countering the threat of expansion of their enemy Kroton's but and by the city's notable demographic growth which risked disrupting the existing fragile balance. Thus it extended its control from the Ionian coast to the Tyrrhenian side of present-day Calabria;[34] founding the two colonies of Medma (today Rosarno) and Hipponion (modern-day Vibo Valentia) between 650 and 600 BC, likely built on existing settlements, occupying Metauros (modern-day Gioia Tauro), previously established as a colony of Zancle (Messina) or Rhegion (Reggio Calabria).[35]
At the beginning of the 6th century BC the entire region was under the control of city-states and further expansion required waging war against neighbors. The rivalry with Kroton and Rhegion increased as they perceived Locri as a threat to their expansionist projects, which laid the foundations for future clashes.
War with Kroton

Locri had established good relations with its neighbouring city, Rhegion. The population of Locri Epizephyrii, at its peak, did not exceed 40,000 and even with support of its sub-colonies (and possibly of Rhegion in during this period) was limited to 10,000–15,000 men. Kroton, however, was able to deploy an army of up to 120,000 men (probably an excessive count), but still significantly outnumbered Locri’s forces.
At the Battle of the Sagra (560-550 BC) Locri emerged victorious, halting Kroton's expansionist ambitions and establishing Locri as a new power in the region. Following this victory, the cult of the Dioscuri began to be observed in both Reggio and Locri; during excavations of the Ionic temple of Marasà in Locri Epizephyrii two marble acroteria statues were found which may represent these twin sons of Zeus (now housed in the National Museum of Magna Graecia, Reggio).[36]
Locri expanded its control further north than ever before, incorporating Kaulon and likely Skylletion located on the Ionian coast as well as probably Terina and Temesa on the Tyrrhenian coast. Therefore gaining control over the territory between the Gulfs of Squillace and Sant’Eufemia, leading to a period of significant prosperity in the second half of the 6th century BC.[37]
Subsequently, with the rise of Reggio’s power under the tyrant Anaxilas (r.494-476 BC), Locri rejected their hegemony and turned to Syracuse.
Alliance with Syracuse
From the start of the 5th century BC Locri began to lose control of the colonies and cities that it had gained after the Battle of the Sagra, including nearby Kaulon, which again fell under the control of Kroton. These difficulties led to Rhegion also setting its sights on Locri to expand from the close border between the two cities.
Locri therefore established alliances with the Deinomenids (485–465 BC) of Syracuse and later with Dionysius I and his son Dionysius II, thus entering the orbit of the tyrants. In 477 BC Anaxilas of Rhegion (modern day Reggio Calabria) was preparing to attack Locri, then turning to Hieron I of Syracuse for help and then successfully dissuading Anaxilas.[38]
Subsequently, when Athens organized the expedition to Sicily in the Peloponnesian War, Locri sided with Syracuse in its war against Rhegion, an ally of Athen, becoming the base for Athenian naval operations. After 426 BC a period of continuous clashes followed - by both sea and land - unfolded between the Syracusan and Locrian armies against their Athenian and Regginian enemies, ending around 422 BC.
The alliance between Locri and Syracuse was further strengthened by the marriage of Dionysius I to Doris of Locri around 406 BC.
In 389 BC, following Dionysius I victory over the Italiote League at the Battle of the Elleporus, he granted Locri control over the lands of Kaulon, located on its northern border with Kroton; Locri also regained Hipponion (in 388 BC) and Skylletion (between 386 and 384 BC), further expanding northward to the detriment of Kroton. In 386 BC, Dionysius I also conquered Rhegion after the Siege of Rhegium, stripping it of its independence and removing it as a threat to Locri. With Rhegium subdued and Kroton suffering constant attacks from Dionysius I, Locri entered a renewed period of peaceful prosperity.
After the death of Dionysius I, Locri hosted Dionysius II who, established a tyranny in Syracusan between 357 and 347 BC as a consequence of having been exiled from Syracuse before. He aimed solely to return to his homeland with capital to finance his return to Syracuse. Once he had depleted the city’s coffers, the people rose up, killing his entire family during his absence and re-establishing democracy.
The 4th century BC was a period of great artistic, economic and, above all, cultural splendour for Locri. In particular the poet Nossis and the philosophers Echecrates, Timaeus and Acrion, founders of a flourishing Pythagorean school (introduced to Locri at the time of Dionysius I): Plato himself visited Locri.[39]
However the Bruttii became an increasing threat from the north from around 356 BC and Syracuse lost its strength. It was around this time that the city walls were renovated with a loan from the sanctuary of Zeus, as recorded on the bronze tablets. The allied Syracuse and Locri armies tried to recapture its earlier territory and succeeded in the capture of Crotone in 295 BC and the liberation of Hipponion in 292 BC from the Bruttii, but finally failed due to the death of Agathocles in 289 BC.
Meanwhile Rome was expanding its borders and aiming to control Magna Graecia.
Roman conquest
The weakness of Syracuse was disastrous for all the Greek cities of southern Italy, as they were unprepared for the threat of the Bruttii, Samnites and Lucanians. Fearing for their survival and distrusting the Italiote League, the Greek cities had to ask for help from Rome, which exploited this opportunity to extend its control southward by sending military garrisons. Locri received such a Roman garrison before 282 BC.[40]
In 280 BC Pyrrhus invaded southern Italy to uphold a previous alliance with Tarentum, formed in the earlier war between the Romans and the Samnites. The resulting change of regional power balance prompted Locri to form an alliance with Pyrrhus, as it resented its dependence on Rome, and expelled the Roman garrison. However, the failure of Pyrrhus’s campaign, coupled with the growing unpopularity of his rule due to increasingly tyrannical behavior, led Locri to surrender once again to Rome in 277 BC.[41] By this time, Rome controlled most of southern Italy, forcibly leading Pyrrhus, engaged against the Carthaginians in Sicily, to return to Bruttium aiming to stem the Roman advance. He first attacked Locri, retaking and sacking it in 275 BC, harshly exacting revenge on the people who handed the city to the Romans and looting the famous temple of Persephone.[42] Soon afterward, Pyrrhus left Italy and Rome gained control of Magna Graecia.
In 272 BC, Rome established a new garrison in Locri and, in return for their military support, made only moderate demands from the cities of Magna Graecia - exempting them from providing men for the legions and only requesting the supply of ships when needed.[43][44] Locri therefore became a socia navalis of Rome, remaining independent, while retaining its Greek characteristics, and continuing to mint its own money. In 264 BC Locri provided several transport ships for Rome in the First Punic War, honoring their treaty.[45]
Second Punic War
.png)
After the defeat of the Romans at Cannae (216 BC) the fate of Rome seemed sealed and the cities of southern Italy, which view begun to consider the Romans as occupiers rather than allies, decided to side with the Carthaginians, swayed by Hannibal's promises of freedom and independence. Hannibal's priority was to conquer an outlet to the sea in Bruttium and in winter 216/215 BC and, after abandoning plans to capture Rhegium, ordered Hanno to seize Locri. Hanno sent the cavalry forward under Hamilcar to capture the population outside the city walls and thus a large number of prisoners who were used to secure the unconditional surrender of the city. At the same time the Locrians secretly allowed the Roman garrison, commanded by Lucius Atilius, to leave the city. Locri was thus granted significant autonomy, maintaining the port under its control and being able to govern itself provided that it supported the Carthaginian forces.[46]
The cities of southern Italy were gradually retaken by the Romans and, after the Battle of the Metaurus, Locri was the last great city still in the hands of Hannibal. However the army sent in 208 BC to support a naval expedition to recover Locri led by Lucius Cincius Alimentus was annihilated near Petelia and the two Roman consuls, Marcellus and Titus Quinctius Crispinus were killed near the Carthaginian camps. The naval expedition reached Locri and besieged it but fled on the arrival of Hannibal.[47]
In 205 BC the consul Scipio Africanus devised another plan to reconquer Locri and when some inhabitants of Locri fell into the hands of the Romans[48] they informed them that a large part of the population could no longer tolerate the Carthaginian presence, confirmed by the Locrian exiles in Rhegium, Scipio returned the prisoners to Locri who arranged, once inside the walls, to eliminate the Carthaginian guards at night and let 3,000 Roman troops into the lower part of the city.[49] The Carthaginians, taken by surprise, took refuge in the citadel and began an exhausting battle of daily skirmishes between the two opposing garrisons inside the city. Hannibal immediately set off with his army towards Locri and was about to reach the city when the Locrians joined the Romans on the battlefield, making a decisive impact.[50] The Roman fleet then arrived, led by Scipio, and Hannibal, realizing Locri was lost, withdrew.
Aftermath
After ten years, Locri had once again come under Roman control, and Scipio immediately ordered the execution of those who had handed over the city to the Carthaginians in 215 BC. He ignored the fact that they had allowed the Roman garrison to escape at that time, and that the entire population had later come to the Romans aid in the final battle.
The city was left in the control of Quintus Pleminius and the military tribunes Marcus Sergius and Publius Mazienus. Pleminius took advantage of the confused situation due to the ongoing war to commit every kind of atrocity, violence and theft on the Locrian population.[51] He even went so far as to sack the famous sanctuary of Persephone (as Pyrrhus had done decades earlier), the richest sanctuary in Italy. There are different versions of what happened next[52] but the discontent resulted in increasingly frequent clashes between factions within the garrison after which Pleminius had the military tribunes beaten, whose supporters pounced on Pleminius seriously wounding him. Pleminius retaliated in turn by having Sergius and Matienus tortured and finally killed. Scipio returned to restore order and arrested Pleminius. Eventually, on direct appeal of the Locrians, the Senate had Pleminius sent to Rome (where he soon died in prison), restored the losses of the treasury of Persephone from public funds, and made the Roman soldiers return their loot while the Locrians were given back their freedom.[53]
In 204 BC, the restoration of the foedus amicitiae and the extensive autonomy that Rome granted it allowed Locria to keep its ancient laws and customs but the vicissitudes of the 3rd century BC caused a notable depression of the city. Large areas of the city were abandoned (e.g. the Centocamere area) and agricultural settlements began to be developed in the surrounding areas.[54] The ancient splendour was therefore gradually obscured but the city continued to have a certain importance in the years following. The depression and strong ties with Rome would cause the Greek character of the ancient polis to begin to be replaced by romanisation.
Further Romanisation
Around the end of the 3rd or beginning of the 2nd century BC, another desecration of the Persephoneion by the Bruttii prompted a new and decisive intervention by the Roman Senate in favour of Locri[55] This response was motivated both by Rome’s desire to honor its oath of loyalty and mutual aid with Locri and by the Senate's interpretation of the temple desecration as a bad omen. As a result, Quintus Minucius conducted swift investigations, which soon led to the capture of the culprits and the restitution of the funds stolen from the temple treasury.[56]
Following this, Locri was called upon to fulfill its military obligations as civitas foederata to provide triremes for the Roman fleet in 191 BC during the war against Antiochus III the Great and again in 171 BC during the conflict against Perseus of Macedonia. But the economic crisis in Locri left the city unable to provide the ships required in 156 BC against the Dalmatians and in the Iberian Peninsula and in this case it was the historian Polybius, who enjoyed great favour in Rome, who intervened to exempt Locri from sanctions[57] since he often went to Locri where he was popular through his stories of the birth of the city.
Locri likely became a municipium in 89 BC like other foederata cities, following the Lex Julia.
Imperial era
Locri remained an important centre known by personalities such as Cicero,[58] but its importance was more local, confined to a provincial area that was increasingly distant from Roman political interests and the great economic traffic of the empire. It therefore became a smaller administrative centre but numerous agricultural centres and opulent villas grew up which took over from the city from an economic and residential point of view.[59] The discovery of these sites and their study by archaeologists have shed a new light on the Locri area in the Roman period, especially the imperial age, a dynamic historical phase in which the opulence and refinement of Roman aristocracy manifested itself in the creation of monuments as rich as elsewhere in the empire. The city was relatively wealthy at least until the end of the 2nd century AD, and was praised for its healthy climate.
The city
Archaeological excavations carried out by Orsi (between 1908 and 1912), by Arias (between 1940 and 1941) and by Jacopi (in 1951) revealed that the town was organised with a rectangular plan crossed by a wide main street which still retains the Greek name of "dromo" (cf. dromos), and above which the hilly area of the city starts.[60]
The discovery halfway up the Mannella hill of a deposit of important inscriptions for the later administration of the city led to the implication of the presence of the agora at its base.[61]
Centocamere
Locri was bound to have had a wealthy part of town with elegant houses, which are yet to be found. The Centocamere houses, on the other hand, were very basic, put together with cheap materials: cobbles and plastered mud bricks. The Centocamere houses had only one floor above ground and a porch giving onto the street. Typical of Greek houses of the time, the rooms were arranged around a central (variously shaped) inner courtyard. This served a variety of purposes: it gave light for the rooms, shelter for the house's animals, a place for an open fire, and a space to carry out everyday domestic activities. A part of it could be set aside for an herb garden and vegetable patch as well as light industrial activities. Some houses may not have had a kitchen. Large earthenware jars (pithoi) were used to store foodstuffs, mainly grain. The amphorae, both locally produced and imported, were used to store wine and oil.
There is no clear evidence of latrines or bathrooms. The doors were wooden. Ancient texts recount that timber was easily found on the Aspromonte. There were only a few small windows. The rooms tended to be lit with locally made terracotta and bronze lamps of which many have been found during excavations. Furniture was basic, made of wood.
The walls
-
Northeastern Wall -
Parapezza Gate -
Southwestern Wall
The city was defended by a wall 7 km long, which is still visible in many places, including the 3 towers of Abadessa, Manella, and Castellace in the highest part, placed to dominate the surrounding land. They were built in the second half of the 6th century BC, even if they were in the original plan of the polis dating from the 7th century BC. Over the years there were renovations and integrations; between the second half of the 4th century and the end of the 3rd century BC, substantial changes were made when new towers were built, gates were modified, and above all, new revetments were built to increase their width from 3.4 to 4.6 m. The aim of this was to allow troops to man the wall walk and better defend, in particular, the eastern curtain by closing several gates and reinforcing key points.
The foundations and the lower rows of the wall used big, squared limestone blocks in rows of stretchers and headers. Unbaked bricks were used above these for economic and technical reasons; this material was widely used in the ancient world, though not preserved due to its crumbling.
Theatre

The Theatre held up to 4,500 spectators and is located in the Pirettina area. It exploits a natural concavity at the foot of the Casa Marafioti hill below the Cusemi plateau and was excavated by cutting steps in the very soft sandstone and partly arranged with slabs of the same sandstone. It was rebuilt in the 1st century BC on the original Greek layout from the 4th century BC. Numerous alterations were made over time.[62] The Romans built the side corridors and removed the lower rows of steps to build a high semicircular wall protecting spectators and enlarging the area for fights between gladiators or between men and animals.
It was brought to light in 1940 and excavations were completed in 1957.[63]
Sanctuaries and temples

There were numerous sanctuaries sometimes graced with monumental temples especially inside the walls and dating to the archaic period, while those located immediately outside the walls but without monuments were no less important as shown by the abundant votive offerings.[64]
Sanctuaries outside the city walls include those of Aphrodite, Persephone, the nymphs in Contrada Caruso and Demeter in Contrada Paparezza.[65]
The sanctuary of Grotta Caruso, or Grotto of the Nymphs, was a cave with a spring where the nymphs were worshipped from the 6th century BC.[66] It was at the start of rituals for the passage of young girls (parthènoi) where they would prepare to become nymphai, girls who will marry, then going to the Persephoneion to become brides (gyne).
On the Mannella hill within the city was a sanctuary to Athena probably from the 6th century BC.[67] Also the sanctuary of Zeus (possibly the temple of Casa Marafioti) dates from the archaic period, which over time had an increasingly richer structure as revealed by the bronze tablets found in 1959 in a massive cist and dating from the mid 4th c. BC. The tablets show the temple was wealthy as they summarise loans made to citizens and to the city. They also provide valuable information about the institutions and calendar of the city.
The sanctuary of Demeter
The sanctuary of Demeter Thesmophoros located immediately outside the northeast corner of the walls faced the gate and covered about 3000 m2. Demeter, mother of Persephone, was a goddess linked with the cycle of agriculture and was venerated here as Thesmophorus (thesmos = law; phoros = bearer), protectress of marriage and of the rites of passage from girlhood to adulthood. The sanctuary was located where the city met the countryside with a dual purpose of protecting the city through both female and soil fertility and with a political function for the cohesion of the social group and the respect of the laws.
The sanctuaries of Demeter Thesmophoros had no real temples, but green areas where there might be altars and small buildings used either for conducting rites or for keeping the most valuable votive offerings. There is particular evidence of two phases of frequentation: the first in the second half of the 6th to 4th century BC and then the second half of the 4th to 3rd century BC. During the first phase the sanctuary was very extensive and was encircled by an enclosure (témenos) separating it from the town and from the necropolises of Parapezza. There were big votive pits inside it, one of which has been brought to light by the most recent excavations close to the tower (depositary A), and a small sacred building (sacellum). In the 4th century BC when the boundary walls were rebuilt and the corner tower built, the sanctuary was reduced to a small rectangular enclosure containing an altar and small votive depositaries. The importance of the cult of Demeter in Locri can also be seen from the tablets of the archive of the temple of Olympic Zeus and from the representation of the goddess in various local artistic documents (pinakes and some statuettes of the Grotta Caruso sanctuary).
The Thesmophoria, autumn festivities lasting three days, were celebrated here.
The temple of Adonis and House of Lions
The small temple or sacellum was built in 500-480 BC in the Centocamere area just outside the walls but on a different alignment to them. It was where private worship of Adonis took place in the Athenian 'style' led by a female thiasos. The poet Nossis,[68] one of the best preserved Greek women poets, wrote about this Locrian cult around 310 BC as she was perhaps was part of one of the female thiasoi who honoured the goddess.[69]
In the 2nd half of the 4th century BC a refined two-storey house was built over it, but aligned instead with the city walls, from materials of the temple known as "the house of lions" because of the lion's head dripstones from the previous sacellum used in the foundation.
With a large area of 400 m2, the 6 rooms were arranged around the courtyard, typical of Greek houses, which had channels for the drainage of the water. The rooms included a workshop, vestibule and the andron. The workshop was paved with tiles and is recognisable for its independent entrance facing the street while a second doorway on the inside allowed the owner the passage from the workshop to the rest of the house. The vestibule was characterised by offerings represented by six upended amphorae, without their neck and bottom, containing bone remains and crockery. The andròn, the traditional banquet room, was identified as a wide room that is not placed next to the entrance, the traditional location. It accommodated seven klinai and had refined finishings such as the plastered and painted walls, and tiles on the floor delimitating a central platform used to support banquet furnishings.
The elaborate house underwent several changes between the end of the 4th century and the end of the 3rd century BC. At the beginning of the 3rd century BC there was a monumental change of the house testified by the rich architectural and decorative details such as the roof antefixes and white-plastered columns.
Sanctuary of Aphrodite


The sanctuary of Aphrodite is also located in the Centocamere area in south Marasà just outside the walls near the southeastern gate and near the sanctuary of Adonis. It was in the form of a "U"-shaped stoa and a central courtyard built in two stages in the 7th century and middle of the 6th century BC, and used until the middle of the 4th century BC. It was an imposing structure with a series of six rooms (oikoi, 7 x 5 m), later divided into eleven, on each side of the courtyard of 55 x 66 m. A great deal of curiosity has been raised as to their use; one possibility is that travelling worshippers used them as lodgings and to celebrate sacrificial rituals at sacred banquets as in a hestiatoreion such as at the Temple of Juno Lacinia (Crotone). The residues of the sacrifice would then have been buried in a pit dug in front of each particular room. They may have been used for holy prostitution, sex in the service of Aphrodite recorded by some writers of the time. During religious banquets celebrated here young girls from the poorer classes could have been required to furnish certain services. Given the size of the rooms and the doors' off central position, each room was furnished with a couch (klinai) to one side.
371 bothroi (pits) were found in the U-shaped stoa with remains of meals, evidently intended for the celebration of sacred banquets, with terracotta statuettes and dedications to Aphrodite. Among the sacrificial animal bones, apart from bulls' and pigs' there were also dog remains. Dog sacrifice in ancient times was tied to the moon gods, Aphrodite and Hecate. Amongst the pottery there was a black varnish vase engraved with the name of Cybele, proof that this Eastern mother goddess had reached Locri prior to being incorporated into the worship of Aphrodite. The sacred banquet ritual consumed in the oikoi is echoed in the numerous recumbent statuettes reclining on a kline. In their hands they hold symbolic objects like a patera (a shallow dish for pouring liquids during the sacred rituals).
Sanctuary of Persephone at Manella
The famous Sanctuary of Persephone[70] (queen of the underworld) was located outside the city walls on a narrow terrace in the valley between hills of Mannella and Abbadessa. It was described in Roman times by Diodorus Siculus as "the most famous of the sanctuaries of southern Italy" (but he excluded Sicily).[71] The riches of the temple were often the object of the appetites of foreign sovereigns or common criminals[72] and were plundered by Dionysius II (360 BC), Pyrrhus (276 BC) and by the Roman commander Pleminius, Scipio's lieutenant after his expulsion from Locri during the Second Punic War (205 BC). The votive objects found in the complex (figured terracottas, fragments of vases, arules, pinakes, mirrors and inscriptions dedicated to the goddess) indicate the temple's use was between the 7th and 2nd centuries BC.[73]
It had impressive terrace retaining walls that probably also marked the boundaries of the sanctuary area or temenos. Within was a building around a square pit that was interpreted as a treasury. The sanctuary had no large temple but the retaining walls defined a narrow and dimly-lit path to the consecrated area that gave the ancient visitor a feeling of being in a sacred place.[74]
Many pinakes were found in the Mannella sanctuary: the most frequently-depicted subject is the abduction of Kore, the daughter of Demeter, who became Persephone and wife of Hades (god of the underworld).
The location was the subject of a centuries-old search finally resolved by archaeologist Paolo Orsi who, between 1908 and 1911, carried out a meticulous series of excavations.
The Pinakes

These small ex voto terracotta pictures found in the treasury of the Mannella sanctuary were decorated with polychrome relief scenes illustrating aspects of the myth and cult of Kore-Persephone. They were made in the mid-5th century BC and were rectangular or almost square in shape with a maximum size of 30 cm on each side and had holes for hanging.
They were sculpted in bas-relief depicting mythological scenes and dating mostly to the first half of the 5th century BC. Some refer to the practice of sacred prostitution of virgins, in use in Locrian society, or the initiation ceremony that young maidens underwent prior to marriage. It certified that the bearer had been initiated and was ready to play her part in society as a wife and mother.
Over 5300 fragments from over 170 different types of scene make them a unique collection in the Ancient Greek world. They were put on display, hanging from the holes, before being ritually smashed to avoid this gift to the goddess being removed and reused.
Pinakes were also produced in the colonies of Medma and Hipponion and some have been found at Francavilla di Sicilia in the hinterland of ancient Naxos (Sicily).
Temple of Marasà
The archaic wooden-framed temple from the 7th c. BC was remodelled several times until the end of the 6th c. BC when it was demolished and buried in a large pit inside the city walls.
A new temple was built by Syracusan architects in 470 BC on the initiative of the tyrant Hieron of Syracuse (ally and protector of the Locrians). The new temple was larger, in Ionic style, made of limestone and has the same location but is oriented differently. This temple was much taller than the Doric temples nearby (height to width ratio 1:1), and is one of the few Ionic temples of Magna Graecia. Its monumental size made it visible all over the city and out to sea. Its refined decoration also symbolised the power Locri had accrued.[75]
A major statuary discovery here is the marble group of the Dioscuri on horseback from the rear pediment of the temple. It is an imposing sculpture depicting each Dioscuro descending from a rearing horse supported by a bearded merman, the human torso covered by a cloth and the rest of the body with the appearance of a fish.
The temple 45.5x19.8 m in plan. The cella was preceded by a pronaos (vestibule) with two columns between the doors, which were also repeated between the doors of the opistodome (the space behind the cell) not communicating with it. Service stairs were inserted into the thickness of the walls between the pronaos and the cella, to access the roof, as in some Agrigento temples. In the centre of the cell three large limestone slabs were set vertically in the ground covering a bothros (pit below floor level) which must have been of considerable importance for the cult for storing precious objects.
The temple had 17 Ionic columns on the long sides, and 6 columns on the front. The columns were about 12 m high, with a scrolled Ionic capital base.
The temple was destroyed in the 19th century and the ruins today show only a single column rostrum.
-
Plan of 2 phases of archaic temple of Marasà 7th-6th c. BC -
Ionic temple 5th c. BC with earlier 7th-6th c. below
-
Dioscuro pediment 450-400 BC (Reggio museum) -
From the walls of the cella. 1st phase of temple -
1st phase of temple. Terracotta tiles covering the wooden framework (Reggio museum) -
1st phase. Decoration from the frieze (Reggio museum) -
2nd phase of temple (1st half of 6th c. BC)
Ludovisi Throne

According to many scholars, the famous Ludovisi Throne comes from the Ionic temple of Marasà. Furthermore, a fragment of pínax from 470-60 BC (currently in the Museum of Magna Graecia in Reggio Calabria) found in the temple of Persephone in Mannella shows part of a female figure almost identical to one of the two women represented on the sides of the Ludovisi Throne.[76] It is believed the throne was the parapet of the bothros as it fits the three surviving stone slabs of the cladding still visible there.
Temple of Casa Marafioti
The Casa Marafioti temple is named after the 18th century Casino partly built over it. It used to stand on a small hill at the heart of the city dominating the public area. It may have been part of a very extensive sanctuary which stretched 100 m downhill to where the cist containing the archives of Olympian Zeus was found. If so the temple would have been dedicated to Zeus, worshipped in Locri as the city's protector.[77]
After centuries of being plundered for building materials, in 1910 Paolo Orsi uncovered what remained of its foundations. In the 1990's excavations revealed the temple's plan of about 20 m wide and probably twice that long. It had a peristasis (colonnade) with possibly a double row of columns on its short sides. The temple was built after the middle of the 6th century BC in a novel adaption of the Doric style. An example of this is the replacement of the more usual triple fluted triglyphs which alternate with the smooth metopes on the frieze between the architrave and the roof, with five fluted pentaglyphs. The decoration of the upper part of the building, if not more, was renovated in the last quarter of the 5th century BC which can now be seen in the Reggio museum. This was also when the terracotta statue group was positioned, possibly on the Western pediment. It represents a naked hero on horseback supported by a winged sphinx and dates to the end of the 5th century. Between the 3rd and 2nd century BC the roof burnt down. The temple was probably restored and remained in use until the early Imperial Age.
It is one of the best known examples, with an exceptional state of preservation, of how the Greeks tended to protect the timber roof frame of their temples by cladding it with terracotta elements. These were made serially with dies and then painted with rich colours. The cornice was clad with a series of horizontal plates, adorned with a complex meandering pattern. The ends of the gables were closed with moulded cornices (sime) which were decorated with alternating palms and lotus flowers. On the long sides small triangular openings were left to let rainwater to flow off the gable and away. The lion's heads are strictly decorative with no function. Paint was used to highlight the decoration in relief as well as to adorn the flat surfaces with colourful details.
-
Terracotta knight from temple Casa Marafioti, 420-400 BC (Reggio museum) -
Terracotta frieze from Casa Marafioti temple, 2nd phase 5th c. BC (Reggio museum) -
Casa Marafioti temple (Reggio museum)
Roman city


Research from 1996 has revealed that in the early Imperial era (mid-1st century AD) there was a complete urban and cultural transformation of the ancient city, while significant construction in the post-Hannibal to the late republican periods is missing; the monuments and road network were improved including the water management system notably in the Petrara area which was the political, administrative and religious centre. The urban plan was profoundly redesigned over Greek streets and buildings that had been used as dwellings and workshops.[78]
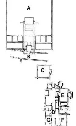
The archaeological exploration of this area involved the large area opposite the great public building (A), previously identified by Orsi, which overlooked an important street (plateia-B). On the opposite side late Imperial Age buildings (3rd-4th c. AD) have been found, aligned on both sides of a small road (D) which crossed the area from the hills to the sea following one of the stenopoi of the Greek Age. On the northern side, several parts of a building complex constructed in the 2nd century AD (E) have been found; it was modified more than once and was eventually transformed into a baths building with heated rooms, two pools and a cistern for water (F). On the southern side, instead, various areas which perhaps were part of a large private house (G) have been investigated and the material found there included an hourglass-shaped millstone and fragments of a marble altar table. Slightly north of this building is a large rectangular area with an apse directed northwards and belonging to another public building (C). In 2003, a marble statue, (on display on the ground floor) 2.3 m tall was found toppled and broken into three parts when the area was deserted (4th-5th c. AD) with a fragment of the base and a foot belonging to another similar statue, indicating the presence in Locrian territory of sculptors' workshops of a quality similar to those in Rome.
Building (B), fronting building (A), with a sea-facing side of 36.7 m overlooking the main street parallel to the coast, extended towards the hills for 110 m, creating an enormous unroofed area delineated by the streets of the Greek city. This building, obviously intended for public use and perhaps for commercial purposes, was built in the 1st century AD over the large hill-sea street (plateia) and the adjacent urban blocks; it thus brought about a radical change in the purpose and function of the central sector of the city compared with the Greek age. The monumental entrance to the building framed in columns was in the centre of the façade and a stairway led up to the inner, uncovered area two metres higher than the surroundings. A series of rectangular rooms lined the inside of the building; in the centre, there was an imposing rectangular structure, probably a monumental fountain, connected to two long drainage pipes with outlets in the façade of the building.
Building A/B seems to be configured as a multifunctional complex, perhaps linked to the celebration of the dynastic cult and the elites of the city, the promoters of its architectural renewal. It also included commercial and perhaps also civic and administrative functions. It has similarities to the two contemporary and well-known examples of the Building of Eumachia in Pompeii and the Augusteum of Herculaneum.[79]
Baths
The large Roman public thermal baths over which the Casino Macri farmhouse was built occupied an area of 1260 m2 in the centre of the city. It was built at the beginning of the 2nd century AD but was never completed and never went into operation It remained unused until the 5th century when it was partially occupied by a cemetery, probably linked to a small settlement which lasted until the 10th century.
The baths were aligned with the regular urban plan of the Greek era and overlooked a porticoed corridor (1) on the main street (plateia) which since the 6th century BC crossed the city from mountain to sea. From the portico there was access to service rooms (2-6), including a latrine (5); which can be visited inside the modern building to the left of the farmyard), some of which led to a large central room (currently under the courtyard of the farm), overlooked by pools for cold baths (8-9): this was the frigidarium of the spa (7). From here, through a large arch, still visible in the nineteenth-century façade of the main building, there was access to a sequence of three heated rooms (15-17, tepidaria and calidaria), the last of which (17) served by three tanks for hot baths (6-8pm). Outside this part of the Roman building there were some basement rooms (22-29), intended to house the ovens for heating the rooms, which were also never completed.
Necropolis
Outside the city there are several necropoleis in the Monaci, Russo, Faraone and Lucifero districts where over 1,700 tombs have been found.
The Necropolis of the Lucifero district, in use from the 8th century BC to the 3rd century BC, includes three types of tombs: pit tomb, Capuchin tomb and semi-barrel tomb. Valuable and valuable objects have been found there, imported from Greece or Magna Graecia (4th century BC) including vases, mirrors, bronze ornaments and precious metal jewellery. Women's toiletry objects were for personal cosmetics (pyxes and lekànai, from the Greek λεκάνη, tray). Bronze mirrors (produced by local artisans) and fibulae (bronze brooches for clothes, local products from the 6th and 5th centuries BC ) were found in the necropolis of Lucifer. Lekythos, or vases to contain perfumed toilet oils were used by athletes before sporting exercises and for funeral rituals. The mirrors, a typical Locrian production exported to Magna Graecia and Sicily, were made of bronze with handles in the shape of a male or female figure.
The Necropolis of the Parapezza district, south-west of Lucifero, includes over 200 tombs. It was used intensely in the archaic age (6th century BC) and in the Hellenistic age (3rd and 2nd century BC). By the 6th century BC large ceramic containers (amphorae for transporting wine and oil) were used, many of which had been imported from Corinth or Athens. There are also amphorae imported from Laconia; this type of pottery was produced in the 7th and 6th centuries BC. Laconian pottery, widespread throughout the Mediterranean, was manufactured using pink clay with yellowish covering on which figures were painted in black. Hydriai, three-handled vessels for drawing and transporting water, have been found. The largest vases were used to contain the bodies of small children. Other vases were used for the ashes of the deceased. The gardens of Adonis (4th century BC) were created in transport amphorae, appropriately broken and upside down. Fennel and lettuce were grown, watered with warm water to accelerate their growth.
The Necropolis of Contrada Faraone is located in the north-east of the urban area. During the excavations, a small limestone pediment with Doric friezes (naiskos pediment) was found dated between the 4th and 3rd centuries BC.
References
- ^ "Locri Epizephyrii | EBSCO Research Starters". www.ebsco.com. Retrieved 2025-05-06.
- ^ O'Meara, D. (2016-03-07), "Sthenidas, of Locri Epizephyrii", Oxford Research Encyclopedia of Classics, doi:10.1093/acrefore/9780199381135.013.6080, ISBN 978-0-19-938113-5, retrieved 2025-05-06
- ^ Lomas, H. Kathryn (2016-03-07), "Locri Epizephyrii", Oxford Research Encyclopedia of Classics, doi:10.1093/acrefore/9780199381135.013.3748, ISBN 978-0-19-938113-5, retrieved 2025-05-06
- ^ Lomas, H. Kathryn (2016-03-07), "Magna Graecia", Oxford Research Encyclopedia of Classics, doi:10.1093/acrefore/9780199381135.013.3874, ISBN 978-0-19-938113-5, retrieved 2025-05-06
- ^ Buckler, John (2016-03-07), "Locris", Oxford Research Encyclopedia of Classics, doi:10.1093/acrefore/9780199381135.013.3750, ISBN 978-0-19-938113-5, retrieved 2025-05-06
- ^ Bonnie MacLachlan, Chapter 11 Women and Nymphs at the Grotta Caruso, Mystic Cults in Magna Graecia https://doi.org/10.7560/719026-013
- ^ "The Locrian Maidens | Princeton University Press". press.princeton.edu. 2003-12-07. Retrieved 2025-05-06.
- ^ "Strabo, Geography, BOOK VI., CHAPTER I., section 13". www.perseus.tufts.edu. Retrieved 2025-05-06.
- ^ "Pausanias, Description of Greece, Elis 2, chapter 14, section 7". www.perseus.tufts.edu. Retrieved 2025-05-06.
- ^ "Plutarch, Pyrrhus, chapter 8, section 5". www.perseus.tufts.edu. Retrieved 2025-05-06.
- ^ "Diodorus Siculus, Library, Book XVI, Chapter 66". www.perseus.tufts.edu. Retrieved 2025-05-06.
- ^ Barron, Laignee (2018-07-11). "Oldest Known Record of Homer's 'Odyssey' Found in Greece". TIME. Retrieved 2025-05-06.
- ^ Milligan, Mark (2018-07-12). "Extract from Homer's Odyssey discovered on clay tablet". HeritageDaily - Archaeology News. Retrieved 2025-05-06.
- ^ Megan Gannon (2018-07-13). "Possible Oldest Fragment of Homer's 'Odyssey' Discovered in Greece". Live Science. Retrieved 2025-05-06.
- ^ Nongbri, Brent (2018-07-10). "The Odyssey at Olympia?". Variant Readings. Retrieved 2025-05-06.
- ^ "La Frazione di Mandorleto". I Comuni e le Frazioni d'Italia. Retrieved 12 May 2025.
- ^ "Locri Epizefiri". Enciclopedia Italiana - III Appendice (1961). Retrieved 12 May 2025.
- ^ "The Archaeological Park of Locri Epizephyri". THE CALABRIA DREAMIN BLOG. Retrieved 12 May 2025.
- ^ "LOCRI EPIZEFIRI (Calabria)". Romano Impero. Retrieved 12 May 2025.
- ^ Strabo 6.1.12
- ^ Herodotus 8.47
- ^ "MAGNA GRECIA" (in Italian). Retrieved 7 July 2023.
- ^ Eusebius, Chron. Arm., sub. Ol., 25, 1.
- ^ Pausanias III, 3
- ^ Polybius, XII, 5; 6
- ^ Strabo, Geography, VI, 1,
- ^ Second Part - The Colonization and the Greek Age, Chapter 1, The Colonization and Origin of the Greek Settlers https://www.locriantica.it/english/history/greek_age1.htm
- ^ William Smith, LLD, Ed., Dictionary of Greek and Roman Geography (1854), LOCRI http://www.perseus.tufts.edu/hopper/text?doc=Perseus:text:1999.04.0064:entry=locri-geo02
- ^ Parte Seconda - La Colonizzazione e il Periodo Greco, Capitolo II, Organizzazione ed Espansione della Polis https://www.locriantica.it/storia/per_greco2.htm
- ^ Strabo VI, 1, 8
- ^ Polybius Histories, XII, 5
- ^ Eisenfeld, Hanne (2016). "Life, Death, and a Lokrian Goddess". Kernos (29): 41–72. doi:10.4000/kernos.2388.
- ^ J.M. Redfield - The Locrian Maidens, Princeton University Press, Princeton (New Jersey - USA) 2003
- ^ Visonà, P. 2010. 4. Controlling the chora. Archaeological investigations at Monte Palazzi, a mountain fort of Locri Epizephyrii. In Tréziny, H. (Ed.), Grecs et indigènes de la Catalogne à la mer Noire: Actes des rencontres du programme européen Ramses2 (2006-2008). Aix-en-Provence: Publications du Centre Camille Jullian. doi:10.4000/books.pccj.809
- ^ Parte Seconda - La Colonizzazione e il Periodo Greco, Capitolo II, Organizzazione ed Espansione della Polis https://www.locriantica.it/storia/per_greco2.htm
- ^ Trogo-Giustino, VP, XX 2, 13 ss.; XXI, 2, 7; 3, 2.
- ^ Parte Seconda - La Colonizzazione e il Periodo Greco, Capitolo III, Il VI Secolo e lo Scontro con Crotone, Battaglia della Sagra https://www.locriantica.it/storia/per_greco3.htm
- ^ Parte Seconda - La Colonizzazione e il Periodo Greco, Capitolo IV, Il V secolo, L'alleanza con Siracusa e Sparta e gli scontri con Atene e Reggio https://www.locriantica.it/storia/per_greco4.htm
- ^ Cicero, De finibus bonorum et malorum, V, 29, 87
- ^ Marcus Junianus Justinus, Epitoma Historiarum Philippicarum 18.1.9
- ^ Zonaras 8.6
- ^ Livy, Ab Urbe Condita XXIX 8, 9
- ^ Polybius, Histories, I 20, 14 and XII 5, 2
- ^ Livy, Ab Urbe Condita, XLII 48, 7
- ^ Polybius, Histories, I 20, 7
- ^ Livy, Ab Urbe Condita, XXIV 7, 1-13
- ^ Parte Terza - Il Periodo Romano, Capitolo II, Seconda Guerra Punica: Locri tra Roma e Cartagine https://www.locriantica.it/storia/per_romano2.htm
- ^ Livy XXIX 6
- ^ Adam Ziółkowski, The Affair of Locri Epizephyrii In 205/204 BC, “Eos” LXX 1982, fasc. 2, pp. 319–329/ fasciculus extra ordinem editus electronicus ISSN 0012-7825
- ^ Livy, Ab Urbe Condita, XXIX 6, 17
- ^ Ab Urbe Condita, XXIX 8, 6-7
- ^ Adam Ziółkowski, The Affair of Locri Epizephyrii In 205/204 BC, “Eos” LXX 1982, fasc. 2/ fasciculus extra ordinem editus electronicus ISSN 0012-7825 p 388
- ^ Ab Urbe Condita, XXIX 8, 6-7
- ^ Livy, Titus (1969). Ab Urbe Condita, Book 29 [From the Founding of the City, Book 29] (in Latin) (1st ed.). Brighton, UK: Kenneth Mason Publications Ltd. pp. 8–9. ISBN 9780900534089.
- ^ Livy, Ab Urbe Condita, XXXI 12, 1-4
- ^ Livy, Ab Urbe Condita, XXXI 13, 1
- ^ Polybius, Histories, XII 5)
- ^ Cicero, De Legibus 2.6
- ^ LE VILLAE ROMANE DEL TERRITORIO https://www.locriantica.it/sito/villae_romane.htm
- ^ Agostino R., Cardosa M., Milanesio M., Grillo E. (a cura di), Il parco archeologico di Locri Epizefri, Reggio Calabria 2012
- ^ Felice Costabile, Elena Lattanzi, Paolo Enrico Arias, Rubbettino editore, I Ninfei di Locri Epizephyrii. Architettura, culti erotici, sacralità delle acque, Felice Costabile, Elena Lattanzi, Paolo Enrico Arias, Rubbettino editore, 1991
- ^ IL TEATRO https://www.locriantica.it/sito/teatro.htm
- ^ G. Amiotti et al., I Greci nel sud Italia, Milano 1995, pp. 21-
- ^ Per una panoramica sul sito di Locri si veda Dieter Mertens, Città e monumenti dei Greci di occidente, pp. 59-62 (2006) ISBN 978-8882653675
- ^ Marcella Barra Bagnasco, Il culto di Adone a Locri Epizefiri, in Ostraka, anno III, 2, 1994
- ^ Bonnie MacLachlan, Chapter 11 Women and Nymphs at the Grotta Caruso, Mystic Cults in Magna Graecia https://doi.org/10.7560/719026-013
- ^ Dieter Mertens,Città e monumenti dei Greci di occidente, p. 61 (2006)
- ^ Nosside di Locri, in Monaco, Casertano, Nuzzo - L'attività letteraria nell'antica Grecia, Palumbo Editore, Firenze, 1997 - pp. 591-593
- ^ Marcella Barra Bagnasco, Anthologia Palatina, Nosside, VI, 275
- ^ Massimo Cardosa, Il santuario di Persefone alla Mannella, 2010, L. Lepore - P. Turi (a cura di), Caulonia tra Crotone e Locri, Atti del Convegno Internazionale, Firenze 2010, ISBN 978-88-8453-931-1 pp. 351-362
- ^ Diodorus XXVII, 4, 3
- ^ Livy, Ab Urbe Condita, XXIX 8, 9 and XXXI 12, 1-4
- ^ Ettore M. De Juliis, Magna Grecia: l'Italia meridionale dalle origini leggendarie alla conquista romana, p. 165 (1996)
- ^ PERSEPHONEION, THE SANCTUARY OF PERSEPHONE https://www.locriantica.it/english/site/persephoneion_eng.htm
- ^ MARASA' https://www.locriantica.it/sito/marasa.htm
- ^ Pino Blasone, Locri, divinità al femminile https://www.academia.edu/930860/Locri_divinit%C3%A0_al_femminile
- ^ Marcella Barra Bagnasco: Locri Epizefiri. Volume IV - Lo scavo di Marasà Sud, Il sacello tardo arcaico e la casa dei leoni. ISBN 9788871660974 (Studi e materiali di archeologia / Università degli studi di Torino) 1 Jan. 1992
- ^ Chiara Giatti “Locri in età romana: nuove osservazioni sull’edificio Orsi a Petrara”, in L. Lepore, C. Giatti (a cura di), La romanizzazione dell’Italía ionica. Aspetti e problemi. Atti del meeting. Università degli Studi di Firenze, 16-17 ottobre 2014. Thiasos Monografie 13, Roma 2018, p. 224
- ^ Chiara Giatti “Locri in età romana: nuove osservazioni sull’edificio Orsi a Petrara”, in L. Lepore, C. Giatti (a cura di), La romanizzazione dell’Italía ionica. Aspetti e problemi. Atti del meeting. Università degli Studi di Firenze, 16-17 ottobre 2014. Thiasos Monografie 13, Roma 2018, p 240